新西兰的皇后镇是一个拥有山川、湖泊的宜人之地,开发商 Bobs Cove 在这里打造了占地面积 13000㎡ 的豪华 Waimarino 度假村,而 Waiora 就是度假村附近的一栋度假别墅。

别墅名为「Waiora」在毛利语中是健康、健康和治愈之水的意思。位于瓦卡蒂普湖旁,同样由 B Group 开发并设计,建筑邀请了 Design Base Architecture 完成。
01 建筑设计 BUILDING DESIGN

别墅选用灰色混凝土打造出简洁现代的建筑框架,巨大的全景窗户,将采光面做到极致,还能享有一览无余的景色,可以欣赏到瓦卡蒂普湖和附近山脉的景色。

屋顶与露台应用绿植进行点缀,使建筑与景观相融合,同周围环境更加和谐。

内凹的入口设计,形成具有引导性的入口空间,弧形墙面上安装简易黄铜壁灯照明,左侧壁灯下还设有同样由黄铜打造的「Waiora」字样。

02 室内设计 INTERIOR DESIGN

△玄关入口
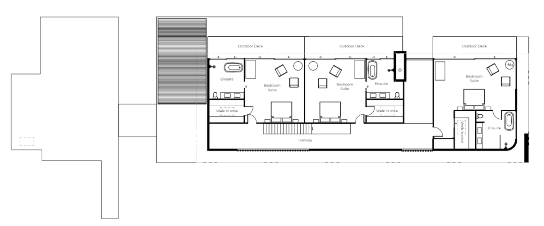
别墅总面积为 1245㎡,室内面积 920㎡,露台 325㎡,共三层,内有 4 间大卧室套房、客厅、餐厅、开放式厨房、还包括 1 个酒窖,红外线桑拿浴房室、无边泳池、大型家庭办公室、健身房、影音室、露台休息区以及 6 个停车场。

△一层平面图

△二层平面图

△地下层平面图
购买该别墅的业主可以委托 Waimarino 度假村的物业来管理房屋,比如日常保养维护和清洁,机场接送等,还能委托假期出租,基于 35% 的入住率,租金为每晚 1.2 万美元~2 万美元(约 7.9 万~12 万人民币)。

△别墅内共设 8 个壁炉,室内 5 个室外 3 个
客厅利用灰色沙发与地毯围合成会客区,一旁的真火壁炉带来自然的温馨氛围,全屋地暖的设计更是照顾到了每一处空间。客厅与露台之间做大面积移动玻璃移门,犹如画框一般框住了室外景色。

开放式厨房选用黑色橱柜搭配灰色大理石台面,与建筑的低调沉稳相互协调。中岛台的设计不仅能让厨房工作井然有序,宽大的台面更是有效的扩大了料理时的操作空间。

岛台下面与侧面空间被充分利用,不仅内嵌洗碗机,收纳抽屉还能够将餐具和各种食品放置其中,给厨房节省更多的空间,整体更加的干净整洁。
外侧再摆放一排木质高脚凳增加吧台功能,让厨房空间也具备一定社交属性。

岛台侧面做开放式书架▽

起居室共设 3 个用餐区,1 个靠近厨房,另 2 个为户外用餐区,在这用餐不论是清晨或是傍晚,都可以欣赏到绝美的景色▽

△此处户外用餐区带有可伸缩屋顶
这是位于一层的卧室,推进式设计具有一定私密性,大面积的落地窗满足了采光与通风需求,更能引景入室。

室外露台布置成休闲区▽

与卧室配套的卫浴,拥有整面的玻璃幕墙,沐浴时还能欣赏到室外美好景色▽

衣帽间选择玻璃做柜体,长虹玻璃做柜门,具有通透感又起到防尘效果,内部不同高低的挂衣区、隔板,满足各种衣物的收纳。

二层设有 3 间卧室套房,不管在哪个房间都能无遮挡的眺望远处瓦卡蒂普湖清澈湛蓝的湖水与塞西尔峰的山脉。

卧室与起居室之间的户外泳池,同样拥有绝佳的景色,身处其中更有种旅游度假的氛围▽

与户外泳池对应设计的红外线桑拿房与温泉,房主或住户只需与 Waimarino 提前预订,就能享受一系列精美的理疗服务,从面部护理到按摩、磨砂到排毒理疗都能安排。

别墅夜景▽

# Waimarino 度假村 #
其实该别墅只是占据了 Waimarino 度假村社区内 11 个私人地块之一,开发商还拥有其它不同系列的度假别墅与住宅。

# LUXURY VILLA #
这套名为「LUXURY VILLA」的一层住宅,室内面积为 52㎡,露台面积 23.5㎡,是一个一居室布局的房子。

房子住宅周围被密集的植物包裹,使人产生安全、隐蔽、远离世俗烦恼的轻松感。



户外浴缸▽

# OWNER'S RESIDENCE #
OWNER'S RESIDENCE 坐落在度假村的最前面,能一览无余远处的湖泊和山景。该住宅同样由建筑师 Design Base Architects 设计,室内面积为 495㎡,露台 210㎡,40㎡ 的泳池。


室内包含客餐厅、厨房、休闲区以及 4 间超大卧室套房,朝向湖景一侧的建筑墙体全部由玻璃打造,赋予了建筑轻盈感的同时也将天空和周围的景色映入其中。

在起居室外的露台上摆放着舒适的户外沙发▽




# PREMIUM VILLA #
PREMIUM VILLA 与 LUXURY VILLA 户型较为相似,室内面积为 69 ㎡,露台 30 ㎡。


内嵌在露台的浴缸,能近距离的与自然接触,更是一个夜晚观星的理想场所。


03 配套设施 SUPPORTING FACILITIES
除了别墅自带泳池、温泉、健身器材外,开发商还在 Waimarino 度假村打造了一系列娱乐场所。
如果 Waiora 的房主委托 Waimarino 来管理他的房子,就可以享受到一系列配套设施,还能免费使用他们的双避震 Scott 山地自行车和电子辅助山地自行车,小型奥迪全电动 E-tron 车队,以及两艘 8 米长的兰德电动船(业主和租客都可以使用)。

Waimarino 餐厅所选的食材都是自己种植的农产品,开发商也很欢迎 Waiora 的业主前来就餐,或是订购野餐食材,在有需要时,餐厅主厨还可以带着服务人员到家中提供烹饪服务。

△Waimarino 餐厅的户外露台
Waimarino 还拥有自己的酿酒厂,在这不光可以品尝到美酒,还能学习如何制作自己的杜松子酒和伏特加。


品酒区内布置了几张座椅,简易的水泥隔板搭配高脚凳作为吧台,四周墙壁选用烧杉木装饰,上方镂空一眼就能看到室外的树木,整个设计让人与自然更加贴近。


瑜伽室▽


最后说一下「Waiora」是一个永久产权的房子预计将于 2023 年完工。
