家居君走访过很多小户型,可以说是精彩各异,而在40㎡内架起一座桥还真是头回见!这所房屋是混凝土结构的商用Loft公寓,单层建筑面积只有40m²。怎么容纳母女二人舒适居住?女儿毕业于央美空间设计专业,从事美术馆策展工作,对于自己的家有着非同一般的要求与期待。母女二人考虑长期共同生活,所以构建两个独立卧室和巧用空间收纳是核心诉求。

怎么用空间让两代人沟通无阻?设计师打算利用Loft独有的纵向层高,拓出开放性的共享空间,建立起两代人共居的情感纽带,构筑起人与人之间心灵的桥梁。“桥屋”这一富于诗意和活力的创意于是这样破壳而出。
认识设计师
刘阳 YANG LIU
戏构建筑设计工作室创始人/主持设计师,中国建筑装饰协会会员,高级室内建筑师。希望传达一种设计态度,以有趣生动的设计回应多元文化时代。
房屋信息
地点 :北京 户型 :loft 面积 :40 m² 花费:35W

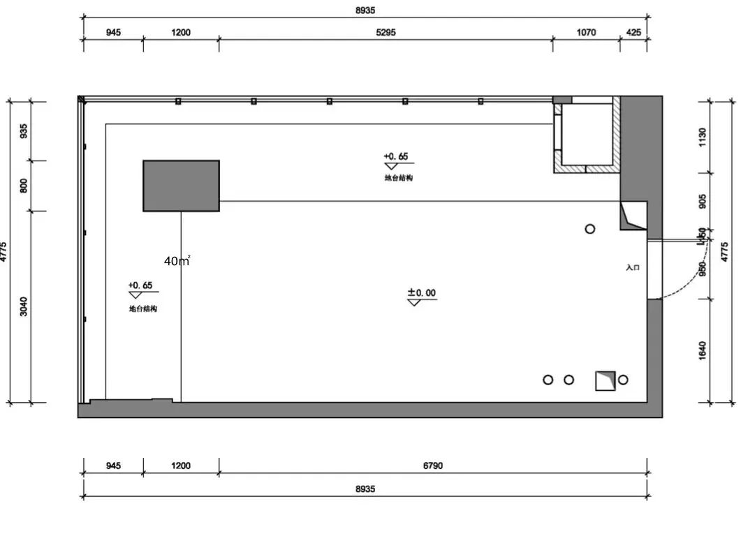
原始户型图
#改造前
住房位于塔楼西北角,建筑面积为40 m²,高度为4.2米。室内空间拥有两扇大面积的玻璃采光,临窗处有混凝土地梁抬高。除此之外就是一个“空盒子”,留下较大的发挥空间。
#改造后


一层为主要起居空间。设计师利用原始结构地台,围绕沙发构建出具有单人床尺度的休息区,同时在旁边“藏”下一间卧室,为多人居住提供可能。
二层空间尽量隐匿楼梯的存在感。经由桥廊进入主卧,14 m²内整合储物空间、梳妆台、工作台、双分离式独立卫生间和淋浴房。

为充分发挥Loft层高优势,两面巨幅的落地窗分别做出两个挑空空间,并在中间置入“桥廊”形态,将上下两层串联起来,让公共空间自然贯穿且有效利用。
01 / 客厅 妙用地台营造2个休息区 沙发区旁藏卧室

从这个视角可以看到整个房屋的空间关系,一层是集厨房、餐厅、休闲、睡眠为一体的多功能空间。设计师利用地台高度营造出两个休息区,沙发区与餐区。精确把控楼梯高度与层高关系,使人置身小空间却能感到游刃有余。

一层休息区的沙发是按照空间尺寸定制而成,书柜与榻榻米为一体设计,同时具备强大收纳功能和结构感,与家中的环境融为一体。

从台阶上看向客厅——三个层级(沙发区、二层、台阶上)都能相互观望,隔而不断的空间,让母女二人无论在家中任何位置,都能方便沟通。

地面材质采用宅匠微水泥,无缝隙材料令空间更具整体性。
一气呵成的微水泥材质地面,为空间提供一个中性基底色,有效提升空间整体感和品质感。

沙发休息区旁通过推拉门隐藏了一间独立卧室。这里既是沙发地台的延伸,也是屋主母亲的卧室。
02 / 厨房 凿壁借光 从卧室引入自然光

依墙一侧是厨房区域,从色彩和线条上都做了减法,满足日常使用即可。为增加自然采光,厨房与小卧室之间设有采光口。整体台面和墙面选用杜邦可丽耐人造石,美观耐用,便于打理。

厨房的另一侧,将大型家电严丝合缝的置入其中,规整且节约空间,对于小户型来讲再友好不过。从这个视角还能看到入户门的位置,实力证明了只要合理规划,再小的空间也不怕!
03 / 餐厅 餐厅面朝无敌窗景 全屋最佳景观位

餐桌与台阶高度平齐,面朝玻璃幕墙,也是全屋唯一通风口和采光理想之地。坐在这里可以眺望远山,也能纵观全屋,是名副其实的全屋最佳的“景观位”。 惬意的午后,阳光会通过落地窗照进来,屋主也可以在这里看书、画画。

台阶上的一侧,放置了一个边柜,承担着展示和收纳的角色,材质和颜色都保持统一和谐。摆放绿植,活化空间。
04 / 楼梯 巧用楼梯做收纳 二层台阶玩“隐身”

楼梯被隐藏在柱体后方,既能给人带来“另辟蹊径”的惊喜感,也是通向二层“桥廊”的前奏。

楼梯内部空间也被合理利用起来,将生活中不可避免的杂物也有序收纳,让凌乱一扫而光。
05/ 桥廊 串联挑空空间和主卧 小空间大视野

走上二层,桥廊结构映入眼帘,窗景和室内全景一览无余,仿佛走在桥上,给人豁然开朗的感觉。桥廊尽头辟出工作台,合理布局,最大化利用空间。
桥廊左侧——吊灯、绿植、沙发,配以极简的建构与色彩,整个空间仿佛一座小型美术馆,与屋主职业背景和审美情趣极为契合。

吊灯:&tradition
从廊桥往下看的视角,不大的空间通过巧妙的布局,藏露有序,生活功能两不误。
桥廊右侧——用餐区、绿植和窗景一览无余,室内室外的界限模糊起来,移步换景间放松心情。
06/ 主卧 弧形窗隔而不断 14 m²整合多功能


通过桥廊进入卧室,整体设计简洁明亮。卧室中弧型的窗户使之与两层共享的挑空区域相互独立且隔而不断。

二层从桥廊至主卧选用实木地板铺设地面,增加居室的温馨感。为了保障淋浴房的舒适度,设计师将淋浴空间局部降低。色调选择高级灰,与卧室做出视觉区隔。
07/ 卫生间 壁挂马桶省空间 小空间不局促

一层和二层卫生间均使用壁挂式马桶,即使在狭小空间,使用起来没有丝毫局促感。

40㎡的loft如何容纳母女二人舒适居住,还能放下桥廊结构,串联两层、空间翻倍?不妨用游戏心态笑面局促空间多重挑战,没有什么不可能完成的任务~
用空间架起心灵的桥梁,更多关于家的美学密码持续等你解锁!
图片策划 / Vivian 文字 / Azur 设计 / 刘阳 YANG LIU、戏构建筑设计工作室 摄影师 / 立明 视觉 / LZZ
