总部大楼的设计并非只要实用、外观大气就行,也可以结合品牌或者企业产品的自身特性。
今天要分享的是一家意大利皮革生产公司 Faeda 的新总部,设计师将建筑立面和「皮革」本身做了巧妙融合,同时也加入了可持续的设计,令人耳目一新。

△建筑外观
01 极具特色的 建筑外观 THE TRADITONAL FACADE

Faeda 是制革领域的全球领先品牌,凭借其创造力、原材料改造能力和多年积累的经验,与时尚界的主流大品牌均有合作。

2017 年,该公司发起了一项基于可持续性、有利于环境和员工福祉的新总部设计竞赛。意大利事务所 3ndyStudio 拔得头筹,接手了项目的建筑及室内设计,涉及拆除现有生产大楼的北/西角,并建设一座新的总部大楼。

#金属流苏#
外观最大亮点是纯白色金属遮阳墙的设计,灵感来自皮革流苏的样式,将流苏飘逸灵动的特点完美「复刻」在大楼外侧立面墙上,非常形象。


设计师并不是为了好看、形象就如此大费周章地使用这种立面结构,它其实是一种遮光效果非常好的金属遮阳系统,和大楼一样高度的白色金属「流苏」包覆在整个建筑表面使其免受阳光直射。



「流苏」之间的缝隙同时也抱有了一定的视觉渗透性,不至于将周围环境完全阻挡在视野外,这是其一。

#玻璃内墙#
其二,为了有利于拓展室内的全景视觉和视觉深度,设计师用玻璃幕墙,作为所有外部和内部之间的过渡层。



自然光线下,从内部看过去采光依然良好。


△立面结构细部
#独立景观墙#
设计师在规划结构的时候,让新区西侧围墙的平移在厂房和办公区新旧建筑之间产生了一块空地,从而有利于给办公大楼营造更好的隔音效果。

另一方面,设计师还将这面多出来的墙加以利用,安装一整面绿植,打造成垂直花园,不仅塑造更舒适的工作场所,也更符合绿色建筑的健康标准。



悬臂式走廊也有玻璃,将新建筑与相邻的生产区连接起来。


另一个绿化区域位于面向主立面的入口,进一步强调了被绿色植物环绕的工作氛围。

入口处的金属流苏做了曲线造型,让立面有种犹抱琵琶半遮面的意境▽


02 内部设计 THE INTERIORS

#平面规划#
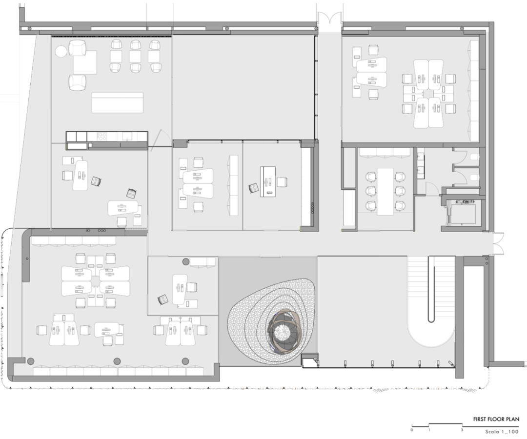
这栋建筑共有四层高,其中 3 层在地上,一楼靠近主入口的大厅设有接待处,可通往用于接待客户的各种接待室。楼上主要用于行政办公和员工休息区,其中的夹层设有一个花园。



楼层平面图
室内部分,重点要介绍的是三层挑高的接待大厅,由悬空的楼梯墙组成,它的灵感同样来自皮革条,曲线造型随着楼梯的升高一路向上延伸,视觉冲击力很强。

这座楼梯是与艺术家 Giorgio Milani 合作设计的,雕塑般的造型丰富了空间视觉元素。


除了开阔的空间,室内软装也别具一格,大厅当中悬挂着FLOS的水晶玻璃吊灯 NOCTAMBULE。

休息用的座位是 Living Divani 品牌的真皮座椅。

玻璃幕墙也配了单独的百叶帘,可随光照强度自行控制室内采光。

#办公与休息区#
二层办公区采用木质吊顶,竖着的条木强调了空间的线条感,与建筑立面形成呼应。

无主灯的空间,用LED做照明,符合可持续要求。


阳光从矩形切口的天井倾泻而下,穿透金属立面,形成独特的光影。


植物墙为封闭的室内创造惬意景观视野。


夜晚,大楼整个立面由内而外透出柔和灯光,金属条之间宽窄不一,形成丰富层次。






△园区俯瞰图
其他设计图纸 ▽


△剖面图
