Oyster talks 四度蚝餐饮品牌 2002 年于中国香港创立,并在 2013年来到北京,是北京第一家以进口高品质生蚝为特色的西餐厅,也是北京能够吃到品种最丰富、品质水准最高的生蚝专门店。
Oyster talks 四度蚝餐厅委托 odd 为其设计一家新店,店铺位于北京盈科中心,是餐厅北京店的新址。之前餐厅整体采用欧式古典风格,此次搬迁后升级店面以深色调为主,使用现代风格希望能给顾客带来与过去不一样的体验,这也是 Oyster talks 四度蚝餐厅对自身认知的更新。
▼外立面


餐厅外立面由斜面遮雨棚与玻璃门两大部分组成。斜面遮雨棚与传统遮雨棚不同,简单的几何形状起到了遮雨的作用,也让外立面整体形体更为美观。透过玻璃门,斜面遮雨棚与室内深色墙体融为一体,打破了玻璃门带来的隔阂感,站在餐厅外也能感受到内部深蓝色墙体带 来的视觉冲击。铜色的挑出造型与深蓝色的室内空间带来的强烈对比 也让整个入口显得格外引人注目。
▼生蚝吧台

走进餐厅内部,象征着 Oyster talks 四度蚝品牌文化的生蚝吧台伫立于入口处。吧台上展示着丰富多样的海鲜产品,8盏射灯将吧台上新鲜生蚝的光泽表现得十分鲜美诱人。吧台采用了环岛式设计,使得吧台区域成为客人初入餐厅后的必经之处。这样设计能确保客人高效 地了解餐厅招牌菜品种类,更能一目了然地知晓菜品的新鲜程度。吧台立面由纯手工打造的铜板面制成,铜板上的锤纹肌理呼应贝壳表面自然纹路。吧台台面使用不锈钢和石材,两种材料的结合既能跟铜板底座产生鲜明的对比,低调奢华的气质也不会夺走属于海鲜产品的亮点。
▼生蚝吧台

吧台后面鱼尾般的墙面造型仿佛深海里的一盏明灯,木纹理质感带给吧台区域温馨且安静的氛围。昏暗的深蓝色空间与木色墙面的反差将 整个吧台的氛围衬托得更加耀眼。
▼用餐区域

餐厅深蓝色的墙面让人仿佛置身于深海之中般幽静;暖白色灯光照耀 在白色的桌布上,让每一桌美食变得璀璨夺目;墙壁上昏暗的壁灯和 暗色镜面给幽静的空间氛围带来些许温馨。
▼生蚝吧台是去往用餐区域的必经之路

透过用餐区深处的茶色玻璃,低温酒柜中的各式美酒展现在眼前,给这幽暗温馨的空间里又多一份惊喜与醉意。
▼用餐区域的低温酒柜

幽暗的走廊墙面上展示的酒杯令人目不暇接,独立展柜成为了走廊处目光的焦点。天花反射出走廊倒影,给幽暗的走廊增添了一笔深邃。
▼包间内部

包间的氛围与用餐区域不同,设计师采用了明亮轻快的设计,凸显了包间区域在整体设计中的独特性。深蓝色与白色的融合展现了深海的幽静和白色的纯洁,整体空间庄重而高雅。
▼包间内部望向吧台

包间内部有一面与房间等高的酒柜,琳琅满目的美酒也为包间带来一丝欢乐和优雅。墙面的波浪板与窗帘配合着灯带的光,给整个空间带来了丰富的层次感。墙上艺术品挂画陈设均经过业主与设计师悉心甄 选,呈现出精巧别致的艺术气息。
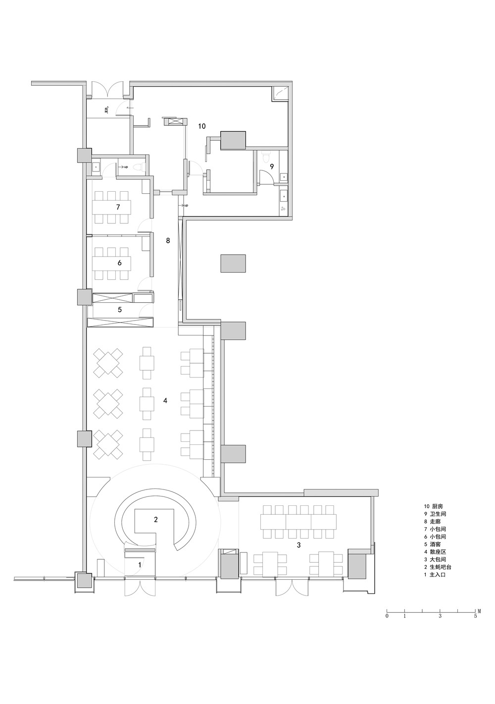
▼项目平面图

项目空间信息:
空间名称:“Oyster talks 四度蚝”餐厅
空间类型:餐饮空间、西餐厅、精品餐厅
空间地址:北京市朝阳区工体北路甲2号盈科中心南侧捌坊一层
人均消费:1111元/人
设计公司:odd设计事务所
设计团队:冈本庆三、出口勉、曹博、魏磊
机电顾问:北京东洲际技术咨询有限公司(石川星明、竹林克宣、山崎隆司)
空间面积:260平方米
空间主材:深蓝色乳胶漆、黑色玻璃、木饰面、深蓝色烤漆、镀铜不锈钢、铜板、白色大理石、木纹瓷砖、黑色水磨石
摄影版权:锐景摄影——广松美佐江/宋昱明

这设计的不错哦