触动感官和心灵的酒店
Read & Rest精品酒店置身于北京繁华忙碌的市中心内,力图在舒缓感官与诱发好奇心间取得平衡点,以此作为其倡导的高品质生活方式核心。
▼酒店外观


OFFICE AIO为酒店设计的空间,旨在引导人的心境进入一种平和悠闲的状态,为丰富和交流心智作铺垫。毗邻街道的入口为了隔离喧嚣,掏空入口外立面后的空间,形成两层高的中庭廊道。以此开启了一个如望远镜般变化的通路,由质朴的入口步入开敞的中庭,穿过亲密舒适的大堂,进入图书馆。其中切换的尺度及空间使客人忘却时间的流逝,像阅读乌托邦式的童话故事一样,逐渐触达开悟的精神境界。
▼入口立面

▼入口走廊

胡同里的幽静体验
空间设计中带有中央走廊的图书馆和书房,以重复性、对称性和节奏性,塑造了一个宁静和使人专注的空间。疏散的布局、极简的空间雕饰、柔和的色调以及木材石料的自然纹理,体现了设计上贯整着个酒店克制简练感。从公共区域到所有的客房,形成了一种有助于舒缓人们感官的全方位体验。
▼带有中央走廊的图书馆和书房

▼书架

▼家具细节

客房以石膏打底,采用浅色暖灰色调,增强了隐秘感,犹如一个“安静小窝”。就此反射的光线柔和缓弱,并由暖色调的黄铜和天然橡木随类赋彩。 墙身原有的大敞口窗户被保留了下来,并改装成玻璃窗,让日光洒入整个房间,为胡同里的景致定格。 每一个窗口都配宽而长的木架台,意在让人就坐放松身心,享受阅读的乐趣。
▼客房内部

▼窗口配有木架台,提供了阅读空间


▼暖灰色调石膏墙面搭配暖色调的黄铜和橡木元素

凡此种种承载了客户和OFFICE AIO忠于简约和本质的生活理念。
▼室内细节


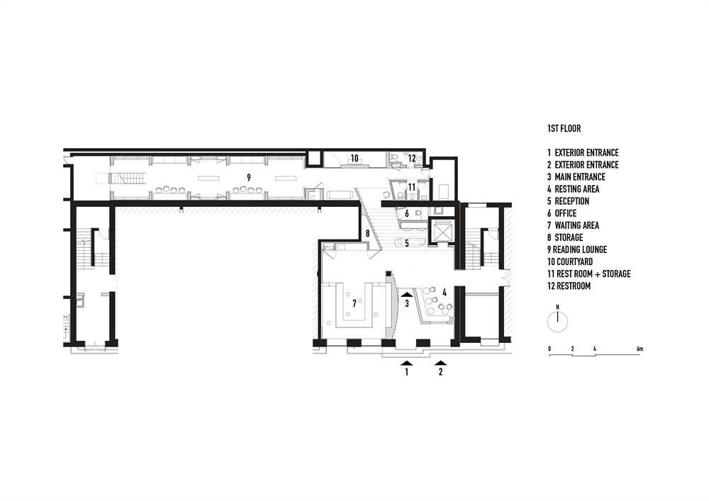
▼一层平面图

▼夹层平面图

空间类型:酒店民宿、精品酒店
空间地址:北京市东城区东四北大街69号
酒店房价:450-640元/间/晚
设计公司:OFFICE AIO
主创设计:关穗棋(Tim Kwan)
设计团队:孙运萱(Isabelle Sun)、赵雪、解传宝、任海鹏
工程公司:北京东益远大建筑装饰工程有限公司
混 凝 土:北京大古
平面设计: MEAT
项目客户:5Lmeet
项目面积:2500平方米
空间主材:石材、灰砖、涂料、木地板、木材、肌理漆、瓷砖、藤编
摄影版权:Wen Studio
