蔚来NIO House成都新店
营造艺廊般的社交空间
“NIO蔚来”是一家中国的全球化初创公司,致力于生产高端新能源汽车以及提供相关的配套服务。MOC DESIGN OFFICE 继NIO Space 2.0形象升级后,与蔚来汽车再度联手,打造位于成都的NIO House。

▲ 夜色中的NIO House
作为一个颠覆传统的新能源汽车品牌,NIO开创了用户的深度互动的企业文化,NIO House则承载了品牌与用户在线下的连接的重要作用。

本项目位于成都城东核心区的万象城II期,是成都的大型居住聚集区,项目位于万象城定位科技生活的C区。本项目也是成都的第二家NIO House,它既是蔚来车主的展厅,也是一个社交空间,为成都不同区域的用户提供深度服务。
空间规划的断舍离
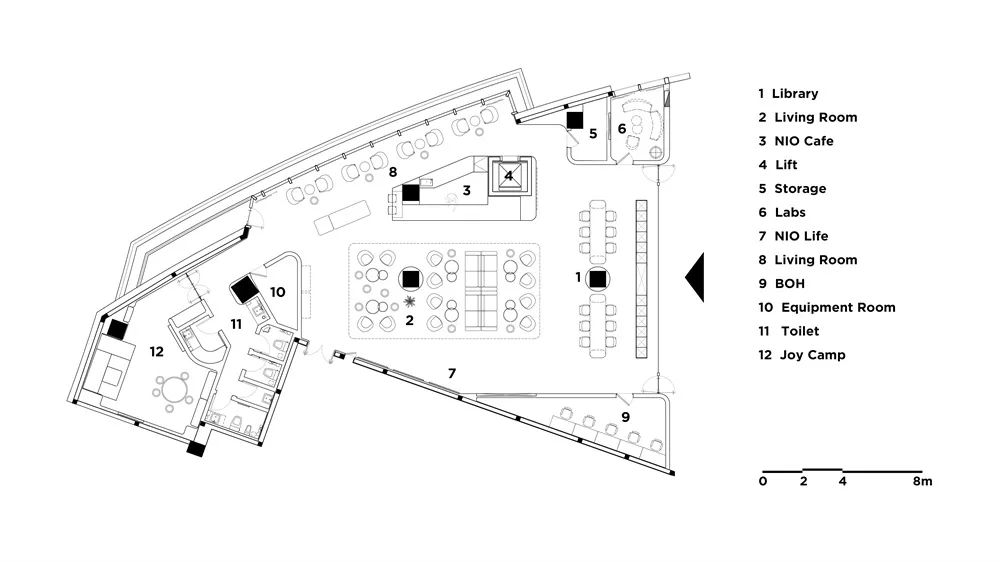
与其他NIO House一样,成都NIO House拥有自己独特的布局——它分为上下两层,一层规划为汽车展厅,二层则作为用户共享的生活方式空间使用。

▲ 一层平面

▲ 二层平面

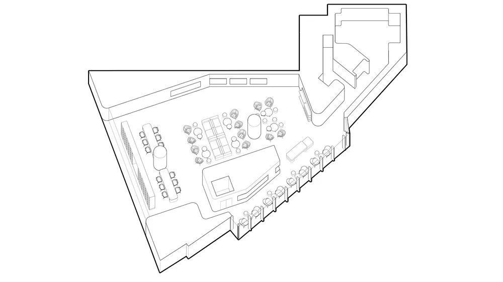
▲ 一层概览
由于原场地中,两层楼之间没有独立的连接关系,且商场内最接近本项目的电梯都比较远,如何将两层楼连通是本项目设计的第一个难点。
通过各个层面的比对和计算,MOC确定了一个最适用于本项目的方案——由于一层层高较高,且面积本身不大,保留更多的使用面积用于车辆展示会对品牌形象更加有利,MOC舍弃楼梯连通楼层的做法,在空间一侧规划了一条无机房电梯连接楼层,只需步行七级台阶,用户即可通过电梯便捷快速地抵达二层共享空间。

▲ 电梯连接了上下两层


两个“Gallery”——为社区营造艺廊般的社交环境
首层的Gallery空间是NIO主力产品的集中展示区,最核心的任务是不露声色地在空间中体现NIO的技术实力与美学品位。
大道至简,空间整体呈统一的暖灰调,凌厉的大体块感直观地表达出空间的科技属性,低调内敛的空间让汽车成为空间的亮度。

暖灰色的水磨石、墙角位置的弧形处理,使空间在凸显科技感的同时又充满包容性,通过细节的处理突显NIO对品质的严格要求。


▲ 空间细节
NIO House不仅仅是品牌理念的单向输出,还是用户之间分享观点、交流的地方:一层的Gallery空间,是NIO对展车空间调性的定义,二层则定义为用户共享空间。
MOC从“Gallery艺廊”中汲取灵感,将整个二层空间都控制在白色的主基调下,兼具舒适感与包容性。

▲ 从二层主入口看向室内
作为一层的延续,二层的Gallery触及到更多更细致的方面:包括轻松舒适的Living Room,为用户提供放松、独处的休闲功能的Library,配套服务整一楼层、为用户提供NIO专属饮品的NIO Café,为孩子打造的Joy Camp,承载思想、灵感碰撞的Forum,供用户预定的独立房间和共享工作空间Labs,以及NIO的生活方式展厅。

对向着商场内的入口,MOC在通透的玻璃内设置了一组透明亚克力展柜,在LOGO两侧布满汽车模型,加上少量且克制的木材质的衬托下,隐隐向外透出后方空间开阔且休闲的氛围。


▲ 柜体细节
展柜的内侧是两组长桌,除了Library的功能外,还可用于部分用户活动。类似这样的情况,MOC在二层的设计中非常关注空间的复用性。

▲ Library 休闲区

空间中间位置被设置为共享休闲区Living Room,在举办活动的情况下,则可以灵活调整家具满足活动需求——NIO Day 2020在成都举办,NIO House 成都万象城店出色扮演了其中一个分会场的角色。

▲ 墙面展示与共享休闲区结合


▲ 休闲模式

Forum模式

“Gallery艺廊”的概念不止定义了空间的氛围基调,更凸显在对NIO Life产品的展示形式上。MOC希望NIO Life产品能像艺术品一样展示,因此在墙面上设置多组“挂画”,产品则是画中的内容,系列化地呈现给用户。



墙面上留出的空白“挂画”展示空间,是为NIO与用户共创所提供的展示平台,在这里,用户们的想法被聆听和重视,并艺术化的展示出来。



临窗的位置,视野最为开阔,也最为舒适,则全数设置为Living Room区域,提供给用户使用。



▲ 从共享休闲区看向室外
Joy Camp采用与外部非常不同的视觉效果,更为活泼的色彩搭配,在强调孩童属性的同时又不失艺术性。



NIO House不仅突破了传统的汽车展厅的形式,更是希望为用户提供一种将艺术融于生活的休闲生活方式和场景,希望用户在这友好宜人的氛围中,让车生活成为生活的延伸。
项目信息 PROJECT INFO
项目名称: 蔚来汽车NIO House -成都万象城店
主创设计师:梁宁森,吴岫微
设计团队:杨振钰,吴心鸿,古耸宇
设计周期:2020.8-2020.10
竣工:2021
项目地址:成都市双庆路8号万象城二期C170、C268
面积:470㎡
主材:透光灯膜,喷砂不锈钢,木饰面板,水磨石
业主:蔚来汽车
撰文:杨振钰
翻译:柯清雅
摄影:形在摄影
