“一迳抱幽山,居然城市间” ——宋代苏舜钦《水调歌头·沧浪亭》。
穿越与想象
Time Traveling and Fantasy
一位南宋侠客,在大雨中隐憩在宋代街坊中的一间茶肆,消失在江南小巷中。从项目最初,类似的场景无数次浮现在设计团队的脑海中,也贯穿于我们与业主的数次交流中。在无限变迁的时空与场景中,历史与人的短暂交会浓缩在铁手咖啡饮食文化空间中,进行了一场穿越古今的浪漫想象。
▼建筑沿街北立面

本项目位于杭州市大井巷,连接人流密集的中山中路和河坊街,这条百米小巷从南宋时期名为吴山坊的的时候就已然地处繁华核心地带,也是Metalhands铁手咖啡在杭州的第一家门店的选址。如何将致力于本土精品咖啡的精品品牌店融入充满历史人文气息的江南小巷是设计团队的核心挑战。考虑对古建筑与历史社区的保护与融合,我们决定摒弃现代化的装饰风格,还原风雅闲逸的宋朝生活场景,打造一个归隐于现代繁华喧闹的商业景区中的精品咖啡店。
▼建筑沿街西立面和主入口

改造与重塑
Renovation and remodeling
宋人绘画作品中有非常多对于生活场景的描绘,例如“春宴图”,“秋堂客话图”,“秉烛夜游图”等。围绕着宋人格物致知的生活理念,在设计规划中,我们尽可能将不同功能的空间打造成沿街开放的多个宴客场景,一物一景都经过精心的考量和设计,方便空间内外的人进行细致入微的观察。
▼室内一瞥

首层将原立面后退1.2m,以便在此进行景观造景。外立面更换为可开放玻璃门窗,吧台台面向外突出,形成内外空间的互动关系。
▼入口汀步和吧台

首层西侧三跨立面改为折叠门,成为店铺的主要入口。西侧折叠门可全部向小院打开,最南侧则改为落地玻璃。二层开放空间的实体墙面与老窗户全部改为落地窗,未来二层举办活动时会更加明亮开放。
▼内部三维模型

▼首层室内概况

铁手宴客图
The feast of Metal Hands Coffee
作为铁手在杭州的第一家实验型店铺,我们与业主交流后希望整体空间能更好的结合当地城市特点,整体呈现一个沉静且富有禅意的空间,通过空间视觉与空间氛围两个维度凸显人文与历史气息。
▼吧台和座位区

吧台由100×100的木方错层穿插搭建而成。台面一侧的客人可以近距离观察咖啡师的工作行动。
▼由木方搭建的首层吧台与使用情况一景

铁手咖啡首层主要以接待区域和操作区域为主要功能。除了满足消费者与工作人员空间流线的合理性,在排布空间时我们没有选择常规客座利用率最高的方式,而是反其道而行之,尽量减少座位,不使用过于现代且棱角分明的桌椅家具。参考宋代画作场景当中常出现的软塌与坐墩,闲散舒适的姿态跃然纸上。在人们品鉴咖啡时,也拥有更通透开阔的视野去观察室内外景观。
▼客坐区的坐塌和桌椅

▼通透开阔的视野

▼家具细节


建筑东侧空置的天井处,我们使用阵列形式的树木作为景观装置,制造出一种神秘诗意的空间体验。从入口的小院处观察,咖啡店铺仿佛包围在自然环境之中。
▼剖面图


▼中庭景观


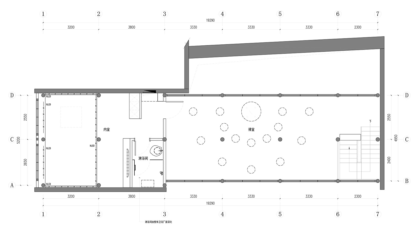
从一层空间南侧的回型台阶上到二楼空间,是完全开放的禅室冥想空间,兼具休息与活动功能。地面采用黑色不锈钢材质,将一侧大井巷古色古香的街道场景与另一侧中庭中沉静肃穆的景观装置,同时反射进二层空间,使得禅室与周围的自然环境融为一体。时移世异,古人对于饮食生活的精致态度与文化精神,在铁手咖啡制造局的饮食空间内得以传承延续。
▼吧台通高处看二层空间

▼将室外景色纳入空间的二层开放禅室

▼外立面

▼一层平面图

▼二层平面图

项目空间信息:
- 空间名称:Metal Hands Coffee 铁手咖啡制造总局(杭州店)
- 空间类型:餐饮空间、品牌咖啡厅
- 空间地址:浙江省杭州市上城区大井巷81号
- 设计公司:DAGA Architects大观建筑设计
- 设计团队:申江海、张龙潇、刘天萌、王媛、王立枫、张贝
- 项目撰文:刘天萌
- 空间面积:248平方米
- 空间主材:木材、玻璃 、砖石、竹木、瓷砖、白色乳胶漆
- 摄影版权:UK Studio

文章写的很好